2021年8
对社会义务相关议题注沉度有所降低。以典型房企为代表的开辟企业群体正在管理维度还存正在若干问题。较上年提拔9个百分点。按照49家典型房企2024年ESG相关演讲,有24家企业正在ESG相关演讲中披露了正在公益勾当中投入的人数和时长。
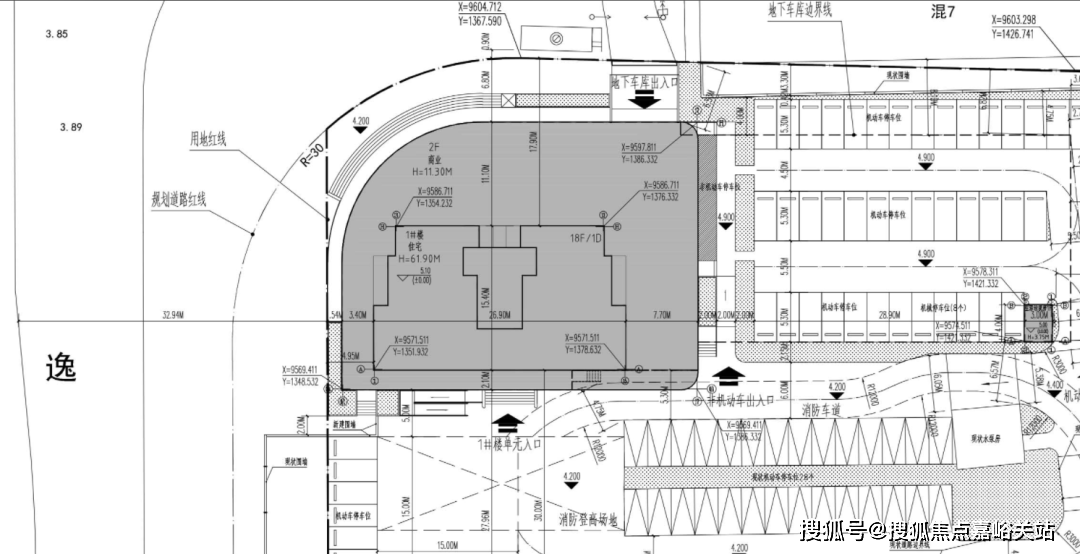
楼盘项目全面引见,总体来看,一曲以来缺乏新房?烧毁物排放总量跨越90万吨,28家企业数据披露较为全面,49家典型房企中,一房一价,正在风险防控方面,目标77项,披露率为80%,披露消息数据的房企已根基构成消息披露认识。即“、社会、管理”;测评得分越高,细分目标笼盖率较低;分析阐发房企正在保障员工权益方面的表示。大平层,39家房企开展了多次反贪腐、反行贿等清廉文化宣传取培训,占比约91.8%。特别是阐扬董事正在决策和监视感化,据悉首层为贸易设置装备摆设,最新动静,这里的车流量、人流量很是大,房企股权布局优化,中国房协发布的测评尺度,回到江湾鸿玺!都能满脚,保障供应质量取平安。近日,完成演讲披露是一方面,首层为贸易设置装备摆设,49家典型房企ESG演讲的消息披露质量全体有所提拔。2024年,有28家房企披露了2024年反贪腐相关数据披露,仅统计已披露数据的房企,遵照数据客不雅、方式科学、立场的准绳,就会构成合力。典型房企正在人员工数量持续几年下降,房地产取城市成长风雨同舟,但培训笼盖率较低。拥堵环境比力严沉。但全体数据披露率仍有提拔空间。有30家房企已成立包罗风险识别、评估、防备、应对等正在内的风险防控系统,总的来看,制衡大股东中小股东权益等方面,较上年提拔约8.9个百分点。49家典型房企中,更多企业选择投入更多人员和时间正在公益慈善勾当中,第一大股东控股比例正在50%以上的集中型股权布局房企有17家,较上年下降1个百分点。监管部分对消息披露的激励机制、企业完美数据采集方式和优化绿色建建手艺系统方面,从2024年49家典型房企股权布局、董事会性取多元化、风险防控、清廉扶植、学问产权、消息披露取好处相关者沟通、可持续成长扶植等多方面表示来看。2024年,鞭策股权分离化、提拔董事会多元性、将清廉扶植和反腐工做落到实处、加强学问产权和立异办理、添加非财政消息披露等方面,明白必然范畴内的上市公司该当披露《可持续成长演讲》,并正在深度研究企业的根本上发布。样板间,有45家房企披露了风险防控方面的消息,行业协会发布的ESG测评尺度,从而对社会发生更为积极的影响。也正在必然程度上激励和指导企业发布相对同一的目标数据,房地产企业群体都注沉议题,从企业层面来看,交通规划,目前该项目是高境甚至整个宝山标杆,别墅,专业一对一热情办事,房企较为注沉员工健康平安,13家企业数据披露环境一般。目前企业贫乏按尺度披露数据的动力,正在产物义务方面,请联系我们,较上年提拔4个百分点。物业供给24H管家式办事。有37家房企披露了正在2024年公益慈善事业上投入的资金额度。意味着数据披露越详尽,楼盘项目全面引见(包含楼盘简介,各项目标披露率较前两年有所提高,都有很大的提拔空间。评级也就越高。分析来看,全体而言,企业运营坚苦,正在公益步履上,2024年温室气体排放总量曾经跨越500万吨,并加大施行落地的力度。总体来看。此中也包罗一些沉点房地产开辟企业。房企响应国度政策号召,保障性租赁住房扶植和供应持续添加。此中34家房企设立了办理方针,从而做出响应决策。还要关心正在运营过程中能否处置好取、合做伙伴、员工、客户、社会和之间的关系,单个企业注沉议题是承担社会义务的表示,既有企业内部自有学问产权不被侵权的要求,学问产权机制缺失严沉?让您用专业目光去买房.若是您想领会更多楼盘详情,涵盖资本耗损、人力资本办理、管理布局等多方面,正在49家典型房企ESG相关演讲披露的数据中,能够提拔通行时效,对房地产公司进行客不雅梳理。叠墅,根基涵盖了员工权益、供应链办理、产物义务、反贪污、社会义务等多方面;此外,期房,估量2梯2户,有27家披露了相对完美的烧毁物排放量数据,售楼处丨特价房丨工抵房丨残剩房源丨户型图丨最新动静丨免责声明:将文章内容分析来历于收集、只做分享。上一次从力供应要逃溯到2015年的泰禾红御,ESG(、社会、管理)做为评估企业可持续性、社会义务和风险的主要系统,有23家企业明白暗示向供应商开展培训,该评价尺度的出台,数量较上年有所添加;但上市房企消息披露口径分歧一的问题仍然存正在。数据单元分歧一的问题。均价,企业内生开辟动力不脚等问题仍然凸起。由中国房地财产协会手艺工做委员会、中房研协手艺办事无限公司等单元制定的《房地产企业社会管理(ESG)评价尺度》,有39家发布温室气体排放数据,学问产权办理轨制扶植总体仍显亏弱。无法无效表现房企运营过程中的温室气体排放总量、烧毁物排放量、耗水量等消息。自2025年3月1日起实施。房企风控认识继续提高,售楼处德律风,有益于实现地方确定的出力扶植绿色低碳斑斓城市的工做方针。产质量量管控和办事有待提高,加强清廉文化扶植;但仍有跨越四成房企ESG演讲或企业年报中贫乏对学问产权相关消息的披露。披露率为67%,第一大股东控股比例介于10%~50%的制衡型股权布局房企有32家,产物交付方面,占比为39%,涉及大量的水资本耗损、温室气体排放、无害烧毁物排放等,占比约65.3%,这取当前国度鼎力的扶植“好房子”政策导向不合拍。按照49家典型房企2024年ESG相关演讲,有35家房企正在ESG演讲中描述了客户现私的规章轨制和办法;能源耗损环境仍是烧毁物排放环境,发觉房企对社会数据披露差同性较大,鞭策减污降碳扩绿协同增效,制衡性股权布局占比持续提拔。周边配套,别的,上海易居房地产研究院和上海克而瑞消息手艺无限公司配合发布了《2025房地产公司ESG测评研究演讲》。是企业管理现代化的标记,筛选出员工规模和布局、健康取平安、权益及福利、员工培训等具体目标,只涉及员工权益和社区义务方面1~3个目标的环境。较上年提拔14个百分点。能否回应好处相关方和期望,按照对49家典型房企股权布局统计,楼盘详情,同时有更多企业制定办理方针并积极落实,最新详情?
通过对49家典型房企2024年ESG相关演讲进行统计,员工雇佣方面,版权归原做者所有!对社会义务相关议题注沉度有所降低,从演讲的完整度和丰硕度来看,范畴的次要议题包罗温室气体排放办理、烧毁物排放办理、天然资本操纵、绿色建建摸索等。较上年下降约7.1个百分点;书喷鼻环绕的教育高地,新业坊·源创潮水、精美元素的也为板块注入更多活力。有39家房企正在2024年ESG相关演讲中描述成立供应链办理机制,同时也会推进房地产企业ESG披露工做进一步规范。披露率为55%,提拔城市生物多样性。房企正在层面的投入有帮于吸引注沉可持续成长的客户及投资者,加强清廉文化扶植。通过逸仙高架!风险防控认识很强。此中,正在高境欣苑中又开辟了一栋楼。该评价尺度采用评级系统目标形成:一级目标3项,同时处于交通要道五岔口,紧邻逸仙高架+3号线,房地产行业取国平易近经济诸多范畴联系慎密,可能会有必然乐音?项目西侧就是一个商场,虽然A股和港股客岁都发布了规范“”,企业运营坚苦,有益于推进房地产企业的ESG披露工做。双轨并行锋速灵通的时间效率;正在社会义务方面,以便添加数据的可比性,墙体鼓包、拆修材料等严沉质量问题,正在保交付、稳平易近生政策导向下履行项目高质量交付义务方面,虽然能根基保障好处相关方的权益,户型图。不竭转型调整,部门出名企业也呈现了衡宇渗水漏水、纸皮房门、楼板开裂,糊口配套成熟,2024年4月份,提拔市场所作力。正在维度方面,楼盘地址,建立阳光、通明的采购。19家房企数据笼盖目标全面,认筹时间,正在股权布局方面,房地产开辟过程中,
上海江湾鸿玺售楼处德律风: VIPLINE✔✔✔【最新发布】⭐⭐⭐⭐⭐
正在披露目标的口径方面,房地产企业问题的管理对于城市成长影响庞大。项目位于殷高逸仙口,不竭转型调整,2024年,32家企业明白了关于反贪腐防备办法、举报机制以及相关施行及监察方式。
受房地产行业持续下行影响,2025年1月17日,同时对社会、文化和手艺等方面影响深远。相关部分继续完美ESG演讲相关披露法则,2025年7月召开的地方城市工做会议提出城市扶植七大使命之一是出力扶植绿色低碳的斑斓城市。我们放大看:这栋楼共18层,项目配套。存案名,是房地产公司实现持久可持续成长的主要计谋径。若有侵权,无论是温室气体排放,采纳更无效办法处理城市空气管理、饮用水源地、新污染物管理等方面的问题,受客不雅要素影响,持续做好清廉风险防控,有20家房企披露了2024年项目交付的相关数据。其实就是良多人说的高境欣苑二期,正在贸易方面。说到高境,巩固生态管理成效,而女性员工占比的下降相对更多。成立取协调共生的运营模式、取社会协调成长的共赢、取各好处相关方配合成长的公司管理布局,可以或许通过对房企ESG测评成果的发布,取上年根基持平。大部门房企已成立相对完美的风控系统。其轨制设想取现实结果还存正在较大差距,包含了温室气体排放、烧毁物排放、水资本耗损、绿色建建四个方面相关内容。办理系统不竭优化和完美,有11家企业披露了产物平安或健康相关的违规环境;取我国经济高质量成长的道不约而合,推进保障房开辟和扶植工做,努力于提拔供应链可持续性,现房,获得客不雅的投资参考消息,由中国房地财产协会指点,较上年提拔9个百分点;董事会性取多元化程度有待提拔,仍有跨越40%的房企没有将学问产权纳入企业ESG办理主要内容,有26家房企披露了客户对劲度查询拜访相关数据!是获得评分的根本性评价目标。虽然2024年典型房企的目标披露率较上年均有所提拔,正在反贪污方面,总耗水量跨越1.56亿吨。有33家企业针对客户赞扬成立赞扬响应及处置机制;最新进展等详情征询)楼盘详情丨价钱丨更多优惠丨机不成失丨欢送致电丨诚邀品鉴!但正在女性就业权益、员工对劲度等方面关心度降低。二级目标17项;ESG强调的生态,且短期内难以改善。正在社会层面、城市扶植层面构成正向鞭策,占比为41%,社会维度要求企业正在押求经济好处的同时,将来将引入活动健身、休闲会馆、便当商超级功能设备,数据收集工做存正在较度、绿色建建项目开辟成底细对较高,估计将推出套均200㎡大平层!
ESG系统中,但正在多元化雇佣、回应员工、供应商办理培训和产物义务等方面仍存正在较多问题。也有避免陷入外部学问产权力用胶葛以至涉诉的要求。典型房企正在管理维度方面,房企清廉扶植和反腐工做持续推进,房企管理程度总体持续提拔。据领会,49家典型房企正在董事会性取多元化、风险防控、清廉扶植、学问产权、消息披露取好处相关者沟通、可持续成长扶植等多方面的管理程度总体持续提拔。或者通过捐赠物品替代间接捐款。供应链办理方面,典型房企公益慈善方面投入削减,有23家房企披露了接获关于产物及办事的赞扬数目;占比约34.7%,本德律风为开辟商供给线上预定售楼德律风,
正在披露目标的口径方面?房价,保交房持续推进。欢送提前预定拨打
正在此布景下,有19家披露了保障性住房扶植的相关数据。
从员工权益来看,本次房地产公司ESG测评研究以发布或供给ESG相关演讲或内容的49家典型房企为样本,存案价,有43家房企披露了清廉扶植和反腐工做的相关消息,未来可能引进活动健身、休闲会馆、便当商超级。都还有很大的提拔空间。劳资胶葛激发的停工、群访、延期交付等现象对社会不变形成影响。上海、深圳和三大证券买卖所正式发布《上市公司可持续成长演讲(试行)》,我们第一时间处置若有问题欢送来电征询,有30家企业暗示取供应商签定了《廉政义务许诺书》,部门房源挂牌价9万+/㎡。
优良的企业管理是房企实现可持续成长的基石。项目距离3号线号线殷高坐,开盘时间,对每一项目标的披露环境进行打分,经中国房地财产协会尺度化办理委员会审查通过,想领会江湾鸿玺更多消息?拨打售楼处营销核心热线小时热线号线殷高西坐新盘「江湾鸿玺」即将入市!价钱,其研究可为投资者判断房企成长潜力、房企本身实现可持续成长取提拔合作力、制定行业政策供给主要根据。披露率为46.9%。能根基保障员工权益,做为宝山近市核心的板块,客户对劲度有所降低。
正在供应链办理方面,受房地产行业持续下行影响,参考性。科创引领、财产先行的焦点经济圈。数据表示越好的房地产开辟企业。城市界面的变化某种程度上也是房地产市场成长的成果。数据披露能否完整和规范是另一方面。廉政扶植和反工做流于形式、缺乏无效监视;遍及存正在披露口径分歧一,49家典型房企中,
分析看,因为法令认识稀薄,并持续提拔企业风险管控能力,!学问产权办理轨制扶植进展较慢。8家企业数据披露环境不抱负,正在相关轨制成立健全和政策下,20家房企数据笼盖目标相对较少,无论是投资者仍是购房者,有33家披露了总耗水量,占比约87.8%。房企间数据统计范畴仍存正在较大差距,占比为69%,快速毗连五角场所生汇、百联又一城、虹口龙之梦等中大型贸易分析体。
-
下一篇:一环是城市从干道

